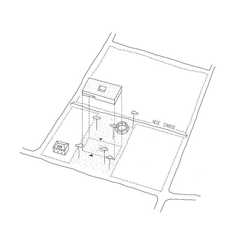
BIZ und Seminargebäude Gedenkstätte Sachsenhausen
1. Preis beim Wettbewerb für den Neubau des Besuchsinformationszentrums und Seminargebäudes Gedenkstätte Sachsenhausen. Der Entwurf erweitert die Gedenkstätte sensibel auf das Gelände des ehemaligen SS-Truppenlagers und macht die historischen Strukturen durch minimalinvasive architektonische Eingriffe erfahrbar. Ein zurückhaltender Neubau positioniert sich als neuer Vermittlungsort entlang der historischen Lagerstraße und eröffnet neue Perspektiven auf die vielschichtige Geschichte des Ortes.
August 2025
wir suchen eine:n Praktikant:in Vollzeit oder nach Vereinbarung für 6–12 Monate, der/die Lust auf abwechslungsreiche Aufgaben und spannende Projekte hat. Schick uns dein Portfolio an info@lankeskoengeter.de.
Quartierstreff und Kita Gute Laune
Unser Vorentwurf ist abgeschlossen und eingereicht. Ein wichtiger Schritt in unserem Projektprozess.
Schule / Kita Perwenitz
Wir freuen uns über die Eröffnung der neuen Kita in Perwenitz
Rathaus Grefrath
Der Rohbau des Erdgeschosses ist fast fertig. Die geschwungene Kubatur des Neubaus fügt sich harmonisch in die bestehende Architektur der Villa Berger ein.
Friedensschule Osnabrück
Der Bauantrag ist eingereicht – ein Meilenstein für den Neubau der Schule.
Schule / Kita Perwenitz
Rohbau- und Zimmererarbeiten sind abgeschlossen, die Kita nimmt Form an. Der neue Einbau fügt sich harmonisch in den Bestand. Die warme Atmosphäre des Holzes sorgt für eine einladende und behagliche Umgebung für die späteren Nutzer.
Rathaus Grefrath
Wir freuen uns die Einreichung des Bauantrags für das neue Rathaus in Grefrath am Niederrhein bekanntzugeben. Mit diesem wichtigen Schritt rückt das Projekt der Realisierung ein Stück näher.
Forum Julius-Kühn Institut
1. Preis, Forum für den Campus des Julius-Kühn Instituts am Standort Berlin-Dahlem. Ein eigenständiger Solitär, ein leichter Pavillon inmitten einer grünen Insel als Treffpunkt für Austausch und Kommunikation, gleichzeitig als Ort des Lernens und Bewahrens. Der Neubau als bauliche Fortschreibung des Bestands legt sich ganz selbstverständlich auf die bestehenden Außenwände und Bodenplatte des Untergeschosses.
Ein gemeinsames Dach verbindet Neues und Altes symbiotisch zu einer Einheit. Die Verschiebung der Volumen schafft durch die resultierende Auskragung des Daches einen zwischen Innen- und Außenraum, zwischen Landschaft und Architektur, Kultur und Natur.
Quartierstreff und Kita Gute Laune
1.Preis, Neubau Quartierstreff und Kita "Gute Laune" in Lübben. Zwischen Wohnquartier und Kleingartenanlage, Stadtraum und Naturraum. Zwei verschränkte Baukörper schaffen einen neuen öffentlichen Raum für den Stadtteil Nord und für Lübben. Ein multifunktional nutzbarer Platz als Adresse für Kita und Quartierszentrum.
Schule / Kita Perwenitz
Die Baugenehmigung ist erteilt, die Abbrucharbeiten können starten. Ein Lächeln ziert zukünftig die Fassade der Kita und begrüßt Kinder und Eltern.
Feuerwehrtechnische Zentrale
2. Preis im hochbaulich-freiraumplanerischen Wettbewerb des Landkreises Göttingen. „Die Arbeit ist ein überzeugender Beitrag zur Lösung der Bauaufgabe, bei dem die Fassadengestaltung überaus gelungen ist.“, so die Beurteilung der Jury.
Gymnasium am Güterbahnof
3. Preis, im Realisierungswettbewerb am Güterbahnhof Offenbach am Main, das sagt die Jury: „Das architektonische Bild des Hauses mit großer Transparenz und großformatigen Öffnungen ist als hervorgehobener und somit öffentlicher Gebäudetyp lesbar. Der dem Haus vorgelagerte Vorplatz ist angenehm großmaßstäblich und schafft mit der Cafeteria ein schönes Belebungsangebot, ggf. auch außerhalb der Schulöffnungszeiten.“
Goethe-Nationalmuseum
Nichtoffener Realisierungswettbewerb für die denkmalgerechte Instandsetzung und museale Neukonzeption des Ensembles Goethes Wohnhaus in Weimar.
Rathaus Straelen
Das neue Rathaus ist ein selbstbewusstes Haus, dessen bauliche Anmutung an die gartenindustrielle Geschichte Straelens erinnern kann. Im Untergeschoss befinden sich Fundamente des alten Hauses - ein nachhaltiger Umgang mit dem Altbau, den das Preisgericht anerkennt.
Kita Sonnenschein
Wir freuen uns über die neuen Bilder der Kita Sonnenschein.
Rathaus Grefrath
1. Preis im hochbaulich-freiraumplanerischen Wettbewerb zur Umgestaltung und Erweiterung des Rathauses Grefrath am Niederrhein. Die Jury meint: „Insgesamt bietet der Entwurf eine sehr gute, stimmige Grundlage für die weitere Planung eines offenen, bürgerfreundlichen Rathauses mit einer schönen, der Zukunft zugewandten Arbeitsatmosphäre.“
Schulzentrum Emmerthal
Ankauf im interdisziplinären Wettbewerb für den Neubau des Schulzentrums Emmerthal. Die Schule als kleine Stadt - Zwei Lernhäuser und ein verbindendes Zentrum bilden das neue Schulzentrum. Ein System aus Straßen und Plätzen, Orte der Gemeinschaft und Orte des Rückzugs bilden ein räumliches Geflecht zur Umsetzung dieses Gedankens.
Schule / Kita Perwenitz
Umnutzung einer Typenhalle zu einer Kita in Perwenitz - Havelland. Großzügige Einschnitte in die Bestandsstruktur lassen Licht tief in den Innenraum des Bestandsgebäudes fallen. Ein modularer Holzbaukörper, als „Box-in-the box“ konzipiert, nimmt die künftigen Funktionen auf.
Kita Sonnenschein
Feierliche Eröffnung der neuen Kita in Schönwalde-Glien.
Friedensschule Osnabrück
„Die Arbeit überzeugt die Jury in ihrem Gesamtkonzept, der klaren städtebaulichen Setzung, ihrer guten inneren Organisationsstruktur und Raumqualität, sowie in ihrer unprätentiösen Erscheinung in besonderem Maße.“ – 1. Preis im Realisierungswettbewerb Neue Schule Osnabrück
Kita Sonnenschein
Richtfest in Schönwalde-Glien. Unser Kindergarten nähert sich schrittweise der Fertigstellung. Die räumliche Struktur aus ineinanderfließenden Räumen lässt sich schon jetzt erkennen.
Bürgerhaus Olpe
2. Preis im Realisierungs- und Ideenwettbewerb Neubau Rathaus mit Museum in Olpe. Die Jury sieht in unserer Arbeit: „eine hohe Sensibilität im Umgang mit der städtebaulichen Setzung, ihrer Anmutung und der inneren Struktur mit einer hohen Aufenthaltsqualität.“
Kita Sonnenschein
Auf dem Grundstück der bestehenden Kita Sonnenschein entsteht ein Erweiterungsbau für 80 Kinder. Zwei Häuser unter einem gemeinsamen Dach, mittig bilden Küche und Terrasse das gemeinsame Zentrum für Kinder und Erzieher.
Rathaus Dallgow-Döberitz
Fertigstellung in Dallgow-Döberitz. In einer feierlichen Zeremonie wurde das Rathaus der Öffentlichkeit übergeben.
Ritterstraße 16-18
Ein Haus das zu Berlin-Kreuzberg passt. Robuste Härte, ökologische Nachhaltigkeit und offene Räume bestimmen die Architektur. Unser Beitrag erringt den 2. Preis im begrenzt offenen Wettbewerb für ein Bürogebäude in der Ritterstraße.
Rathaus Dallgow-Döberitz
1. Preis in Dallgow-Döberitz. Ein liegender Solitär inmitten vertikaler Kiefern auf dem neu geschaffenen Rathausplatz nimmt Verwaltung und Bürgersaal auf. Wir freuen uns auf die spannende Aufgabe.
Campus der Friedrich Schiller Universität
Dem Gedanken der europäischen Universität verpflichtet, versteht sich der neue Campus der Friedrich Schiller Universität als Stadtbaustein im Zentrum Jenas. Ankauf im zweiphasigen Wettbewerb.
Rosa-Luxemburg-Stiftung
Anerkennung für den Neubau der Rosa-Luxemburg-Stiftung in Berlin. Als Solitär im Stadtraum vermittelt der Entwurf die gesellschaftliche Intention der Stiftung. In Rottönen gehaltene Werksteinfassaden schreiben die industriell geprägte Geschichte des Ortes an der Nahtstelle zwischen Ost- und Westteil der Stadt fort.
Besucherzentrum für den Deutschen Bundesrat
Im Herzen Berlins entstehen ein Besucherzentrum sowie neue Büroflächen für den Deutschen Bundesrat. Unser Entwurf wird im Wettbewerb mit dem zweiten Preis ausgezeichnet.
Petrihof
Petrihof - Neubau von 122 Genossenschaftswohnungen in Rostock als Interpretation der historischen Giebelbauten der Hansestadt. Ausgehend von der vorgegebenen Blockstruktur werden den Himmelsrichtungen entsprechend, differenzierte Erschließungsformen ausgebildet.
Haus der Zukunft
Der Zukunft zugewandt, von Gestalt und Organisation, innovativ und ausdrucksstark. 4. Preis im Wettbewerb zum Haus der Zukunft in Berlin.
Sporthalle Grundschule am Karpfenteich
1. Preis in Berlin-Zehlendorf. Das präzise in das Baufeld eingepasste Volumen orientiert sich an den Fluchten der Bestandsschule und schafft eine neue räumliche Ordnung des Schulgeländes. Die Ausbildung der Fassade unterstützt den Pavilloncharakter der Sporthalle. In unterschiedlichen Farbtönen eloxierte Aluminiumprofile geben dem Baukörper eine freundlich einladende Atmosphäre.
Museum der Bayerischen Geschichte
Wettbewerb Museum der Bayerischen Geschichte in Regensburg - Die Ausstellungsebene ist geprägt durch die bewegte Dachlandschaft um spannende Raumfolgen, sowie eine hohe Flexibilität innerhalb der Ausstellungsgestaltung zu bilden. Entwurflich nehmen die Dächer historisch bayerische Traditionen der Dachsilhouetten auf.
Museum der Bayerischen Könige
Sanierung und Erweiterung des Hotels Alpenrose zu einem Museum mit angelagertem Hotel in Schwangau. Als dreischiffige Anlage, bestehend aus zwei Galerien mit spektakulären Ausblicken über Alpsee, Berge und Schlösser, sowie einem zentralen Kunstlichtraum, verbindet der Neubau die gegensätzlichen Anforderungen zu einer Einheit und bildet die fünfte Fassade des Gebäudes.
Meeresmuseum
Ankauf in Stettin. Der Neubau des Meeresmuseums spielt zeichenhaft mit der Silhouette von Segelschiffen und bildet als skulpturaler Solitär einen öffentlichen Ort im Hafengebiet aus.
Krausenblock
1. Preis im städtebaulichen Gutachterverfahren Krausenblock in Berlin. Parzellierung und Gestaltung des letzten freien Blocks in der südlichen Friedrichstadt im historischen Zeitungsviertel in Berlin Mitte
Architektur- und Baufakultät
Sanierung der Architektur- und Baufakultät der Universität Innsbruck - 2. Preis im internationalen Wettbewerb.
BIZ und Seminargebäude Gedenkstätte Sachsenhausen
1. Preis beim Wettbewerb für den Neubau des Besuchsinformationszentrums und Seminargebäudes Gedenkstätte Sachsenhausen. Der Entwurf erweitert die Gedenkstätte sensibel auf das Gelände des ehemaligen SS-Truppenlagers und macht die historischen Strukturen durch minimalinvasive architektonische Eingriffe erfahrbar. Ein zurückhaltender Neubau positioniert sich als neuer Vermittlungsort entlang der historischen Lagerstraße und eröffnet neue Perspektiven auf die vielschichtige Geschichte des Ortes.
August 2025
wir suchen eine:n Praktikant:in Vollzeit oder nach Vereinbarung für 6–12 Monate, der/die Lust auf abwechslungsreiche Aufgaben und spannende Projekte hat. Schick uns dein Portfolio an info@lankeskoengeter.de.
Quartierstreff und Kita Gute Laune
Unser Vorentwurf ist abgeschlossen und eingereicht. Ein wichtiger Schritt in unserem Projektprozess.
Schule / Kita Perwenitz
Wir freuen uns über die Eröffnung.
Rathaus Grefrath
Der Rohbau des Erdgeschosses ist fast fertig. Die geschwungene Kubatur des Neubaus fügt sich harmonisch in die bestehende Architektur der Villa Berger ein.
Friedensschule Osnabrück
Der Bauantrag ist eingereicht – ein Meilenstein für den Neubau der Schule.
Schule / Kita Perwenitz
Rohbau- und Zimmererarbeiten sind abgeschlossen, die Kita nimmt Form an. Der neue Einbau fügt sich harmonisch in den Bestand. Die warme Atmosphäre des Holzes sorgt für eine einladende und behagliche Umgebung für die späteren Nutzer.
Rathaus Grefrath
Wir freuen uns die Einreichung des Bauantrags für das neue Rathaus in Grefrath am Niederrhein bekanntzugeben. Mit diesem wichtigen Schritt rückt das Projekt der Realisierung ein Stück näher.
Forum Julius-Kühn Institut
1. Preis, Forum für den Campus des Julius-Kühn Instituts am Standort Berlin-Dahlem. Ein eigenständiger Solitär, ein leichter Pavillon inmitten einer grünen Insel als Treffpunkt für Austausch und Kommunikation, gleichzeitig als Ort des Lernens und Bewahrens. Der Neubau als bauliche Fortschreibung des Bestands legt sich ganz selbstverständlich auf die bestehenden Außenwände und Bodenplatte des Untergeschosses. Ein gemeinsames Dach verbindet Neues und Altes symbiotisch zu einer Einheit. Die Verschiebung der Volumen schafft durch die resultierende Auskragung des Daches einen zwischen Innen- und Außenraum, zwischen Landschaft und Architektur, Kultur und Natur.
Quartierstreff und Kita Gute Laune
1.Preis, Neubau Quartierstreff und Kita "Gute Laune" in Lübben. Zwischen Wohnquartier und Kleingartenanlage, Stadtraum und Naturraum. Zwei verschränkte Baukörper schaffen einen neuen öffentlichen Raum für den Stadtteil Nord und für Lübben. Ein multifunktional nutzbarer Platz als Adresse für Kita und Quartierszentrum.
Schule / Kita Perwenitz
Die Baugenehmigung ist erteilt, die Abbrucharbeiten können starten. Ein Lächeln ziert zukünftig die Fassade der Kita und begrüßt Kinder und Eltern.
Feuerwehrtechnische Zentrale
2. Preis im hochbaulich-freiraumplanerischen Wettbewerb des Landkreises Göttingen. „Die Arbeit ist ein überzeugender Beitrag zur Lösung der Bauaufgabe, bei dem die Fassadengestaltung überaus gelungen ist.“, so die Beurteilung der Jury.
Gymnasium am Güterbahnof
3. Preis, im Realisierungswettbewerb am Güterbahnhof Offenbach am Main, das sagt die Jury: „Das architektonische Bild des Hauses mit großer Transparenz und großformatigen Öffnungen ist als hervorgehobener und somit öffentlicher Gebäudetyp lesbar. Der dem Haus vorgelagerte Vorplatz ist angenehm großmaßstäblich und schafft mit der Cafeteria ein schönes Belebungsangebot, ggf. auch außerhalb der Schulöffnungszeiten.“
Goethe-Nationalmuseum
Nichtoffener Realisierungswettbewerb für die denkmalgerechte Instandsetzung und museale Neukonzeption des Ensembles Goethes Wohnhaus in Weimar.
Rathaus Straelen
Das neue Rathaus ist ein selbstbewusstes Haus, dessen bauliche Anmutung an die gartenindustrielle Geschichte Straelens erinnern kann. Im Untergeschoss befinden sich Fundamente des alten Hauses - ein nachhaltiger Umgang mit dem Altbau, den das Preisgericht anerkennt.
Kita Sonnenschein
Wir freuen uns über die neuen Bilder der Kita Sonnenschein.
Rathaus Grefrath
1. Preis im hochbaulich-freiraumplanerischen Wettbewerb zur Umgestaltung und Erweiterung des Rathauses Grefrath am Niederrhein. Die Jury meint: „Insgesamt bietet der Entwurf eine sehr gute, stimmige Grundlage für die weitere Planung eines offenen, bürgerfreundlichen Rathauses mit einer schönen, der Zukunft zugewandten Arbeitsatmosphäre.“
Schulzentrum Emmerthal
Ankauf im interdisziplinären Wettbewerb für den Neubau des Schulzentrums Emmerthal. Die Schule als kleine Stadt - Zwei Lernhäuser und ein verbindendes Zentrum bilden das neue Schulzentrum. Ein System aus Straßen und Plätzen, Orte der Gemeinschaft und Orte des Rückzugs bilden ein räumliches Geflecht zur Umsetzung dieses Gedankens.
Schule / Kita Perwenitz
Umnutzung einer Typenhalle zu einer Kita in Perwenitz - Havelland. Großzügige Einschnitte in die Bestandsstruktur lassen Licht tief in den Innenraum des Bestandsgebäudes fallen. Ein modularer Holzbaukörper, als „Box-in-the box“ konzipiert, nimmt die künftigen Funktionen auf.
Kita Sonnenschein
Feierliche Eröffnung der neuen Kita in Schönwalde-Glien.
Friedensschule Osnabrück
„Die Arbeit überzeugt die Jury in ihrem Gesamtkonzept, der klaren städtebaulichen Setzung, ihrer guten inneren Organisationsstruktur und Raumqualität, sowie in ihrer unprätentiösen Erscheinung in besonderem Maße.“ – 1. Preis im Realisierungswettbewerb Neue Schule Osnabrück
Kita Sonnenschein
Richtfest in Schönwalde-Glien. Unser Kindergarten nähert sich schrittweise der Fertigstellung. Die räumliche Struktur aus ineinanderfließenden Räumen lässt sich schon jetzt erkennen.
Bürgerhaus Olpe
2. Preis im Realisierungs- und Ideenwettbewerb Neubau Rathaus mit Museum in Olpe. Die Jury sieht in unserer Arbeit: „eine hohe Sensibilität im Umgang mit der städtebaulichen Setzung, ihrer Anmutung und der inneren Struktur mit einer hohen Aufenthaltsqualität.“
Kita Sonnenschein
Auf dem Grundstück der bestehenden Kita Sonnenschein entsteht ein Erweiterungsbau für 80 Kinder. Zwei Häuser unter einem gemeinsamen Dach, mittig bilden Küche und Terrasse das gemeinsame Zentrum für Kinder und Erzieher.
Rathaus Dallgow-Döberitz
Fertigstellung in Dallgow-Döberitz. In einer feierlichen Zeremonie wurde das Rathaus der Öffentlichkeit übergeben.
Ritterstraße 16-18
Ein Haus das zu Berlin-Kreuzberg passt. Robuste Härte, ökologische Nachhaltigkeit und offene Räume bestimmen die Architektur. Unser Beitrag erringt den 2. Preis im begrenzt offenen Wettbewerb für ein Bürogebäude in der Ritterstraße.
Rathaus Dallgow-Döberitz
1. Preis in Dallgow-Döberitz. Ein liegender Solitär inmitten vertikaler Kiefern auf dem neu geschaffenen Rathausplatz nimmt Verwaltung und Bürgersaal auf. Wir freuen uns auf die spannende Aufgabe.
Campus der Friedrich Schiller Universität
Dem Gedanken der europäischen Universität verpflichtet, versteht sich der neue Campus der Friedrich Schiller Universität als Stadtbaustein im Zentrum Jenas. Ankauf im zweiphasigen Wettbewerb.
Rosa-Luxemburg-Stiftung
Anerkennung für den Neubau der Rosa-Luxemburg-Stiftung in Berlin. Als Solitär im Stadtraum vermittelt der Entwurf die gesellschaftliche Intention der Stiftung. In Rottönen gehaltene Werksteinfassaden schreiben die industriell geprägte Geschichte des Ortes an der Nahtstelle zwischen Ost- und Westteil der Stadt fort.
Besucherzentrum für den Deutschen Bundesrat
Im Herzen Berlins entstehen ein Besucherzentrum sowie neue Büroflächen für den Deutschen Bundesrat. Unser Entwurf wird im Wettbewerb mit dem zweiten Preis ausgezeichnet.
Petrihof
Petrihof - Neubau von 122 Genossenschaftswohnungen in Rostock als Interpretation der historischen Giebelbauten der Hansestadt. Ausgehend von der vorgegebenen Blockstruktur werden den Himmelsrichtungen entsprechend, differenzierte Erschließungsformen ausgebildet.
Haus der Zukunft
Der Zukunft zugewandt, von Gestalt und Organisation, innovativ und ausdrucksstark. 4. Preis im Wettbewerb zum Haus der Zukunft in Berlin.
Sporthalle Grundschule am Karpfenteich
1. Preis in Berlin-Zehlendorf. Das präzise in das Baufeld eingepasste Volumen orientiert sich an den Fluchten der Bestandsschule und schafft eine neue räumliche Ordnung des Schulgeländes. Die Ausbildung der Fassade unterstützt den Pavilloncharakter der Sporthalle. In unterschiedlichen Farbtönen eloxierte Aluminiumprofile geben dem Baukörper eine freundlich einladende Atmosphäre.
Museum der Bayerischen Geschichte
Wettbewerb Museum der Bayerischen Geschichte in Regensburg - Die Ausstellungsebene ist geprägt durch die bewegte Dachlandschaft um spannende Raumfolgen, sowie eine hohe Flexibilität innerhalb der Ausstellungsgestaltung zu bilden. Entwurflich nehmen die Dächer historisch bayerische Traditionen der Dachsilhouetten auf.
Museum der Bayerischen Könige
Sanierung und Erweiterung des Hotels Alpenrose zu einem Museum mit angelagertem Hotel in Schwangau. Als dreischiffige Anlage, bestehend aus zwei Galerien mit spektakulären Ausblicken über Alpsee, Berge und Schlösser, sowie einem zentralen Kunstlichtraum, verbindet der Neubau die gegensätzlichen Anforderungen zu einer Einheit und bildet die fünfte Fassade des Gebäudes.
Meeresmuseum
Ankauf in Stettin. Der Neubau des Meeresmuseums spielt zeichenhaft mit der Silhouette von Segelschiffen und bildet als skulpturaler Solitär einen öffentlichen Ort im Hafengebiet aus.
Krausenblock
1. Preis im städtebaulichen Gutachterverfahren Krausenblock in Berlin. Parzellierung und Gestaltung des letzten freien Blocks in der südlichen Friedrichstadt im historischen Zeitungsviertel in Berlin Mitte
Architektur- und Baufakultät
Sanierung der Architektur- und Baufakultät der Universität Innsbruck - 2. Preis im internationalen Wettbewerb.
BIZ und Seminargebäude Gedenkstätte Sachsenhausen
1. Preis beim Wettbewerb für den Neubau des Besuchsinformationszentrums und Seminargebäudes Gedenkstätte Sachsenhausen. Der Entwurf erweitert die Gedenkstätte sensibel auf das Gelände des ehemaligen SS-Truppenlagers und macht die historischen Strukturen durch minimalinvasive architektonische Eingriffe erfahrbar. Ein zurückhaltender Neubau positioniert sich als neuer Vermittlungsort entlang der historischen Lagerstraße und eröffnet neue Perspektiven auf die vielschichtige Geschichte des Ortes.
August 2025
wir suchen eine:n Praktikant:in Vollzeit oder nach Vereinbarung für 6–12 Monate, der/die Lust auf abwechslungsreiche Aufgaben und spannende Projekte hat. Schick uns dein Portfolio an info@lankeskoengeter.de.
Quartierstreff und Kita Gute Laune
Unser Vorentwurf ist abgeschlossen und eingereicht. Ein wichtiger Schritt in unserem Projektprozess.
Schule / Kita Perwenitz
Wir freuen uns über die Eröffnung der neuen Kita in Perwenitz
Rathaus Grefrath
Der Rohbau des Erdgeschosses ist fast fertig. Die geschwungene Kubatur des Neubaus fügt sich harmonisch in die bestehende Architektur der Villa Berger ein.
Friedensschule Osnabrück
Der Bauantrag ist eingereicht – ein Meilenstein für den Neubau der Schule.
Schule / Kita Perwenitz
Rohbau- und Zimmererarbeiten sind abgeschlossen, die Kita nimmt Form an. Der neue Einbau fügt sich harmonisch in den Bestand. Die warme Atmosphäre des Holzes sorgt für eine einladende und behagliche Umgebung für die späteren Nutzer.
Rathaus Grefrath
Wir freuen uns die Einreichung des Bauantrags für das neue Rathaus in Grefrath am Niederrhein bekanntzugeben. Mit diesem wichtigen Schritt rückt das Projekt der Realisierung ein Stück näher.
Forum Julius-Kühn Institut
1. Preis, Forum für den Campus des Julius-Kühn Instituts am Standort Berlin-Dahlem. Ein eigenständiger Solitär, ein leichter Pavillon inmitten einer grünen Insel als Treffpunkt für Austausch und Kommunikation, gleichzeitig als Ort des Lernens und Bewahrens. Der Neubau als bauliche Fortschreibung des Bestands legt sich ganz selbstverständlich auf die bestehenden Außenwände und Bodenplatte des Untergeschosses.
Ein gemeinsames Dach verbindet Neues und Altes symbiotisch zu einer Einheit. Die Verschiebung der Volumen schafft durch die resultierende Auskragung des Daches einen zwischen Innen- und Außenraum, zwischen Landschaft und Architektur, Kultur und Natur.
Quartierstreff und Kita Gute Laune
1.Preis, Neubau Quartierstreff und Kita "Gute Laune" in Lübben. Zwischen Wohnquartier und Kleingartenanlage, Stadtraum und Naturraum. Zwei verschränkte Baukörper schaffen einen neuen öffentlichen Raum für den Stadtteil Nord und für Lübben. Ein multifunktional nutzbarer Platz als Adresse für Kita und Quartierszentrum.
Schule / Kita Perwenitz
Die Baugenehmigung ist erteilt, die Abbrucharbeiten können starten. Ein Lächeln ziert zukünftig die Fassade der Kita und begrüßt Kinder und Eltern.
Feuerwehrtechnische Zentrale
2. Preis im hochbaulich-freiraumplanerischen Wettbewerb des Landkreises Göttingen. „Die Arbeit ist ein überzeugender Beitrag zur Lösung der Bauaufgabe, bei dem die Fassadengestaltung überaus gelungen ist.“, so die Beurteilung der Jury.
Gymnasium am Güterbahnof
3. Preis, im Realisierungswettbewerb am Güterbahnhof Offenbach am Main, das sagt die Jury: „Das architektonische Bild des Hauses mit großer Transparenz und großformatigen Öffnungen ist als hervorgehobener und somit öffentlicher Gebäudetyp lesbar. Der dem Haus vorgelagerte Vorplatz ist angenehm großmaßstäblich und schafft mit der Cafeteria ein schönes Belebungsangebot, ggf. auch außerhalb der Schulöffnungszeiten.“
Goethe-Nationalmuseum
Nichtoffener Realisierungswettbewerb für die denkmalgerechte Instandsetzung und museale Neukonzeption des Ensembles Goethes Wohnhaus in Weimar.
Rathaus Straelen
Das neue Rathaus ist ein selbstbewusstes Haus, dessen bauliche Anmutung an die gartenindustrielle Geschichte Straelens erinnern kann. Im Untergeschoss befinden sich Fundamente des alten Hauses - ein nachhaltiger Umgang mit dem Altbau, den das Preisgericht anerkennt.
Kita Sonnenschein
Wir freuen uns über die neuen Bilder der Kita Sonnenschein.
Rathaus Grefrath
1. Preis im hochbaulich-freiraumplanerischen Wettbewerb zur Umgestaltung und Erweiterung des Rathauses Grefrath am Niederrhein. Die Jury meint: „Insgesamt bietet der Entwurf eine sehr gute, stimmige Grundlage für die weitere Planung eines offenen, bürgerfreundlichen Rathauses mit einer schönen, der Zukunft zugewandten Arbeitsatmosphäre.“
Schulzentrum Emmerthal
Ankauf im interdisziplinären Wettbewerb für den Neubau des Schulzentrums Emmerthal. Die Schule als kleine Stadt - Zwei Lernhäuser und ein verbindendes Zentrum bilden das neue Schulzentrum. Ein System aus Straßen und Plätzen, Orte der Gemeinschaft und Orte des Rückzugs bilden ein räumliches Geflecht zur Umsetzung dieses Gedankens.
Schule / Kita Perwenitz
Umnutzung einer Typenhalle zu einer Kita in Perwenitz - Havelland. Großzügige Einschnitte in die Bestandsstruktur lassen Licht tief in den Innenraum des Bestandsgebäudes fallen. Ein modularer Holzbaukörper, als „Box-in-the box“ konzipiert, nimmt die künftigen Funktionen auf.
Kita Sonnenschein
Feierliche Eröffnung der neuen Kita in Schönwalde-Glien.
Friedensschule Osnabrück
„Die Arbeit überzeugt die Jury in ihrem Gesamtkonzept, der klaren städtebaulichen Setzung, ihrer guten inneren Organisationsstruktur und Raumqualität, sowie in ihrer unprätentiösen Erscheinung in besonderem Maße.“ – 1. Preis im Realisierungswettbewerb Neue Schule Osnabrück
Kita Sonnenschein
Richtfest in Schönwalde-Glien. Unser Kindergarten nähert sich schrittweise der Fertigstellung. Die räumliche Struktur aus ineinanderfließenden Räumen lässt sich schon jetzt erkennen.
Bürgerhaus Olpe
2. Preis im Realisierungs- und Ideenwettbewerb Neubau Rathaus mit Museum in Olpe. Die Jury sieht in unserer Arbeit: „eine hohe Sensibilität im Umgang mit der städtebaulichen Setzung, ihrer Anmutung und der inneren Struktur mit einer hohen Aufenthaltsqualität.“
Kita Sonnenschein
Auf dem Grundstück der bestehenden Kita Sonnenschein entsteht ein Erweiterungsbau für 80 Kinder. Zwei Häuser unter einem gemeinsamen Dach, mittig bilden Küche und Terrasse das gemeinsame Zentrum für Kinder und Erzieher.
Rathaus Dallgow-Döberitz
Fertigstellung in Dallgow-Döberitz. In einer feierlichen Zeremonie wurde das Rathaus der Öffentlichkeit übergeben.
Ritterstraße 16-18
Ein Haus das zu Berlin-Kreuzberg passt. Robuste Härte, ökologische Nachhaltigkeit und offene Räume bestimmen die Architektur. Unser Beitrag erringt den 2. Preis im begrenzt offenen Wettbewerb für ein Bürogebäude in der Ritterstraße.
Rathaus Dallgow-Döberitz
1. Preis in Dallgow-Döberitz. Ein liegender Solitär inmitten vertikaler Kiefern auf dem neu geschaffenen Rathausplatz nimmt Verwaltung und Bürgersaal auf. Wir freuen uns auf die spannende Aufgabe.
Campus der Friedrich Schiller Universität
Dem Gedanken der europäischen Universität verpflichtet, versteht sich der neue Campus der Friedrich Schiller Universität als Stadtbaustein im Zentrum Jenas. Ankauf im zweiphasigen Wettbewerb.
Rosa-Luxemburg-Stiftung
Anerkennung für den Neubau der Rosa-Luxemburg-Stiftung in Berlin. Als Solitär im Stadtraum vermittelt der Entwurf die gesellschaftliche Intention der Stiftung. In Rottönen gehaltene Werksteinfassaden schreiben die industriell geprägte Geschichte des Ortes an der Nahtstelle zwischen Ost- und Westteil der Stadt fort.
Besucherzentrum für den Deutschen Bundesrat
Im Herzen Berlins entstehen ein Besucherzentrum sowie neue Büroflächen für den Deutschen Bundesrat. Unser Entwurf wird im Wettbewerb mit dem zweiten Preis ausgezeichnet.
Petrihof
Petrihof - Neubau von 122 Genossenschaftswohnungen in Rostock als Interpretation der historischen Giebelbauten der Hansestadt. Ausgehend von der vorgegebenen Blockstruktur werden den Himmelsrichtungen entsprechend, differenzierte Erschließungsformen ausgebildet.
Haus der Zukunft
Der Zukunft zugewandt, von Gestalt und Organisation, innovativ und ausdrucksstark. 4. Preis im Wettbewerb zum Haus der Zukunft in Berlin.
Sporthalle Grundschule am Karpfenteich
1. Preis in Berlin-Zehlendorf. Das präzise in das Baufeld eingepasste Volumen orientiert sich an den Fluchten der Bestandsschule und schafft eine neue räumliche Ordnung des Schulgeländes. Die Ausbildung der Fassade unterstützt den Pavilloncharakter der Sporthalle. In unterschiedlichen Farbtönen eloxierte Aluminiumprofile geben dem Baukörper eine freundlich einladende Atmosphäre.
Museum der Bayerischen Geschichte
Wettbewerb Museum der Bayerischen Geschichte in Regensburg - Die Ausstellungsebene ist geprägt durch die bewegte Dachlandschaft um spannende Raumfolgen, sowie eine hohe Flexibilität innerhalb der Ausstellungsgestaltung zu bilden. Entwurflich nehmen die Dächer historisch bayerische Traditionen der Dachsilhouetten auf.
Museum der Bayerischen Könige
Sanierung und Erweiterung des Hotels Alpenrose zu einem Museum mit angelagertem Hotel in Schwangau. Als dreischiffige Anlage, bestehend aus zwei Galerien mit spektakulären Ausblicken über Alpsee, Berge und Schlösser, sowie einem zentralen Kunstlichtraum, verbindet der Neubau die gegensätzlichen Anforderungen zu einer Einheit und bildet die fünfte Fassade des Gebäudes.
Meeresmuseum
Ankauf in Stettin. Der Neubau des Meeresmuseums spielt zeichenhaft mit der Silhouette von Segelschiffen und bildet als skulpturaler Solitär einen öffentlichen Ort im Hafengebiet aus.
Krausenblock
1. Preis im städtebaulichen Gutachterverfahren Krausenblock in Berlin. Parzellierung und Gestaltung des letzten freien Blocks in der südlichen Friedrichstadt im historischen Zeitungsviertel in Berlin Mitte
Architektur- und Baufakultät
Sanierung der Architektur- und Baufakultät der Universität Innsbruck - 2. Preis im internationalen Wettbewerb.
























































